Fertigstellung 2025
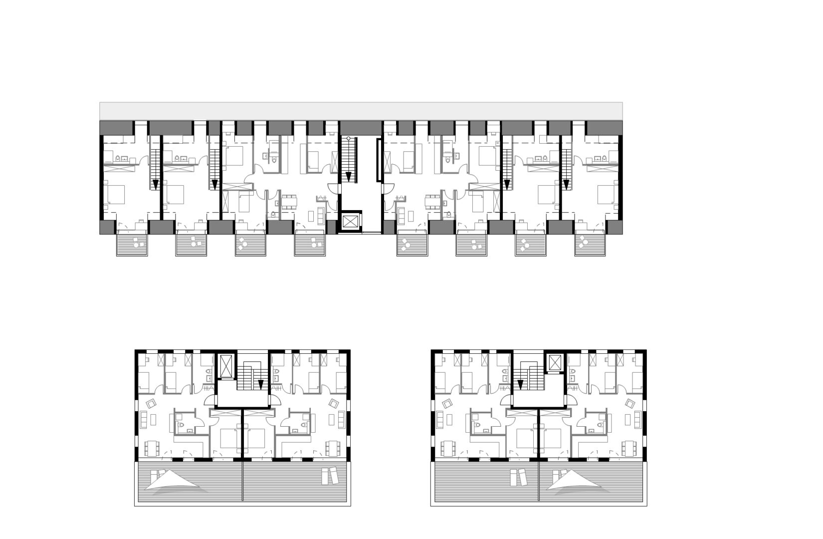
Mit dem Wohnensemble „Wangener Straße 100“ entstehen 43 Stadt-
wohnungen, die ein ehemaliges Gewerbegrundstück zentrumsnah nachverdichten. Die Wohnbebauung komplettiert mit Ihrem Längsbaukörper
die Straßenbebauung an der Wangener Straße, der östlichen Hauptverkehrsachse aus Richtung Wangen kommend:
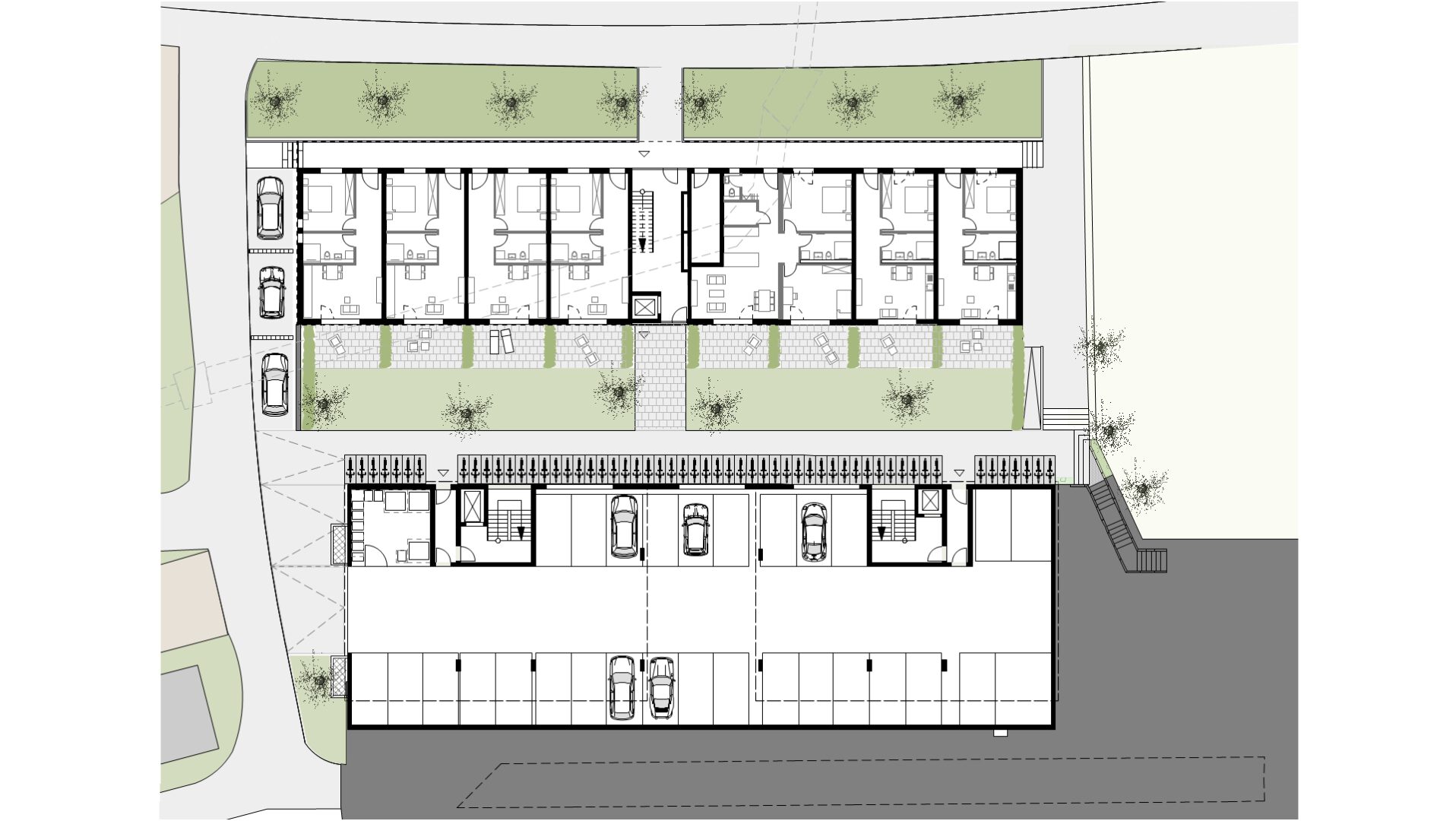
Mit Laubengang und Einbund-Erschließung entsteht ein Schallschutzriegel zur Straße, sodass zurückversetzt zwei Punkthäuser in der introvertierten Grünlandschaft ruhen.
Entsprechend der Topographie am Osthang wird die Quartiersgarage erdgeschossig im Sockelbereich des natürlichen Geländeverlauf eingebettet, sodass die Geschossigkeit der Punkthäuser Richtung Hangbebauung abnimmt und zur benachbarten Einfamilienhaussiedlung vermittelt.
Mit Größe und Körnigkeit stellen die Einzelbaukörper städtebaulich eine Verbindung zur bestehenden Siedlungsstruktur her. Die grüne Parkanlage
bleibt autofrei und schafft verschiedene Aufenthaltsqualitäten.
Der Wohnungsmix reicht von 2-Zimmer Wohnungen bis hin zur 4-Zimmer Penthouse Wohnung oder 3-Zimmer Maisonette Wohnung. Jede Wohnung verfügt zeitgemäß über eine barrierefreie Erschließung und eigenen Balkon oder Gartenanteil.
